0
Nouveauté

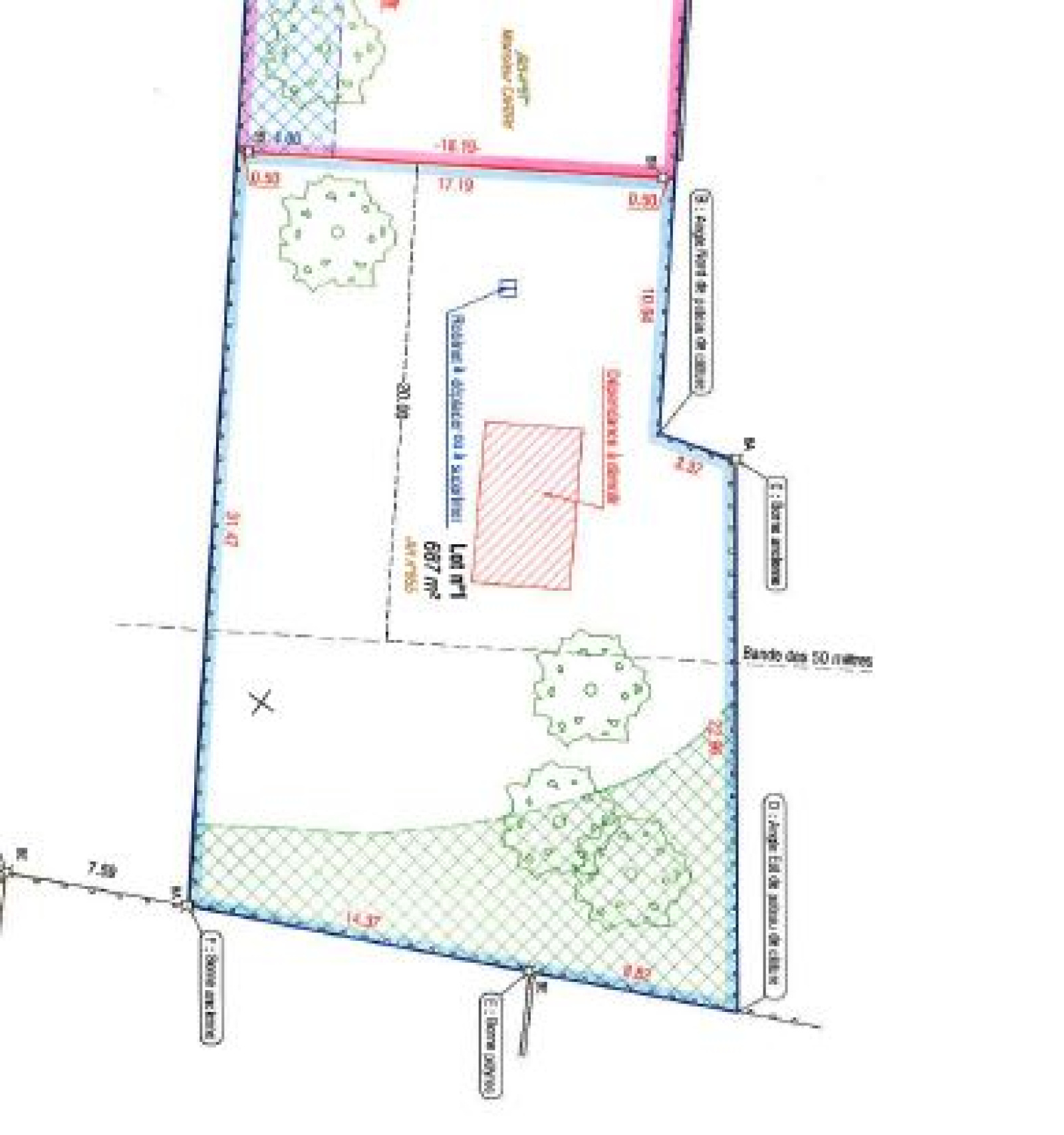
terrain hors lotissement de 687 m²

La Chapelle-Saint-Mesmin (45380)
Réf : 2134

Terrain à bâtir à vendre - 687 m² au calme
Venez découvrir ce magnifique terrain à bâtir de 687 m², situé en second rang, au calme, et offrant un accès privé via un chemin d’accès. Ce terrain est hors lotissement et libre constructeur, vous offrant ainsi une grande liberté pour réaliser votre projet immobilier.

Caractéristiques principales :

  • Surface totale : 687 m² (hors chemin d'accès)

  • Façade : 22 m

  • Emprise au sol : supérieure à 200 m²

  • Surface de pleine terre : 60 % à laisser intacte

  • Construction possible jusqu’à 9 m au faîtage et 6 m à l'égout de toit

  • Exposition sud en façade arrière

Ce terrain vous permet de construire une belle maison familiale ou même deux petites maisons, selon vos besoins. Avec la possibilité de construire un étage "droit", vous bénéficierez d’un beau potentiel d'aménagement, tout en respectant les normes d’urbanisme.

Situation idéale :
Idéalement situé, il bénéficie d’un cadre calme tout en étant à proximité de toutes les commodités. La ligne de bus 51 est à quelques mètres à pied, et la gare SNCF toute proche vous permet de rejoindre le centre d’Orléans en seulement 8 minutes.

Ce terrain est une opportunité rare pour réaliser le projet de vos rêves dans un secteur prisé. Ne laissez pas passer cette chance de bâtir votre future maison dans un environnement agréable et accessible.

Pour plus d'informations ou pour organiser une visite, contactez-nous !

Prix du bien 109 900 €

Caractéristiques du bien

Caractéristiques Valeurs
Code postal 45380
surface terrain 687 m²
Terrain constructible OUI
Surface constructible 687
Exposition Sud-Est
Terrain Viabilisé NON

Infos financières

Caractéristiques Valeurs
Prix de vente honoraires TTC inclus 109 900 €
Prix de vente honoraires TTC exclus 102 000 €
Honoraires TTC à la charge acquéreur 7,75 %
Ce bien vous intéresse ?
Fieldset par défaut
Fieldset par défaut
Validation

* Champs obligatoires

Contacter l'agence
Validation
Les informations recueillies sur ce formulaire sont enregistrées dans un fichier informatisé par La Boite Immo agissant comme Sous-traitant du traitement pour la gestion de la clientèle/prospects de l'Agence / du Réseau qui reste Responsable du Traitement de vos Données personnelles. La base légale du traitement repose sur l'intérêt légitime de l'Agence / du Réseau. Elles sont conservées jusqu'à demande de suppression et sont destinées à l'Agence / au Réseau. Conformément à la loi « informatique et libertés », vous disposez des droits d’accès, de rectification, d’effacement, d’opposition, de limitation et de portabilité de vos données. Vous pouvez retirer votre consentement à tout moment en contactant directement l’Agence / Le Réseau. Consultez le site https://cnil.fr/fr pour plus d’informations sur vos droits. Si vous estimez, après avoir contacté l'Agence / le Réseau, que vos droits « Informatique et Libertés » ne sont pas respectés, vous pouvez adresser une réclamation à la CNIL. Nous vous informons de l’existence de la liste d'opposition au démarchage téléphonique « Bloctel », sur laquelle vous pouvez vous inscrire ici : https://www.bloctel.gouv.fr Dans le cadre de la protection des Données personnelles, nous vous invitons à ne pas inscrire de Données sensibles dans le champ de saisie libre.
Ce site est protégé par reCAPTCHA, les Politiques de Confidentialité et les Conditions d'Utilisation de Google s'appliquent.

Localisationdu bien

  • Commerces et santé
  • Loisirs
  • Ecoles
  • Transports
  • Pratique
Ces biens peuvent vous intéresser